Popis
Pri vývoji tohto projektu z lepených hranolov bolo cieľom vytvoriť najpohodlnejšie bývanie a cieľom bolo, aby bol dom tejto série teplý a jasný, pričom by bol cenovo dostupný.
V projekte boli použité dve stavebné technológie: prvé poschodie je vyrobené z veľkoformátových keramických blokov Porotherm 38 Thermo a druhé - podľa typu technológie polo dreveného dreva (technológia dreveného rámu alebo kostra, ) ktorej základom sú silné lepené hranoly. Bloky prvého poschodia nevyžadujú izoláciu (počas výstavby v strednom pruhu) a steny druhého poschodia a strecha majú izoláciu 250 mm, čo robí tento projekt veľmi energeticky účinným.
Výsledkom bolo, že sa pre 4 člennú rodinu objavil moderný, útulný dom, kde je všetko premyslené do najmenších detailov:
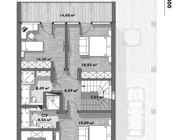
veranda je zarámovaná v drevenom ráme, priestranná vstupná hala, veľká šatňa pri vchode, obývacia izba, otvorený priestor kuchyne a jedálne. - Hosťovská izba so špajzou a celá sklenená stena s posuvnými dverami, ktoré umožňujú spojiť priestor obývacej izby s terasou. Schodisko vedie do druhého poschodia, ktoré je osvetleným denným svetlom. Na druhom poschodí sa nachádza hlavná spálňa s vlastnou šatňou s veľkým oknom a kúpeľňa so sprchou a vaňou, osvetleným podkrovným oknom. Na druhom poschodí sú tiež dve veľké detské izby s premyslenými úložnými priestormi a samostatnou kúpeľňou, so sprchou a vaňou, do ktorej denné svetlo vstupuje cez dve strešné okná.
Charakteristickým rysom tohto domu je možnosť nainštalovať systém, prostredníctvom ktorého môžete z kúpeľne na druhom poschodí vyhodiť špinavé prádlo - okamžite pôjde do práčovne na prvom poschodí.
Projekt má veľké zasklenie. Okrem panoramatického zasklenia v obývacej izbe je v izbách na druhom poschodí zasklená celá stena. Zároveň sa premýšľalo nad bezpečnosťou: panoramatické okná na druhom poschodí sú vyrobené z triplexu a v obývacej izbe sa používa tvrdené sklo. Všetky okná s dvojitým zasklením sú šetriace energiu, čo vám umožní cítiť sa pohodlne v dome za každého počasia a zároveň si vychutnať výhľad na okolitú prírodu.
Ak je to potrebné, k domu je možné pridať ďalšiu otvorenú terasu a prístrešok s plochou využitou strechou, ku ktorému je možné zariadiť prístup inštaláciou ďalšej rímsy v obývacej izbe.
Architektonickým štýlom, v ktorom sa tento projekt uskutočnil, je štýl, ktorý získava na popularite, zmes minimalizmu a podkrovia, so sedlovou strechou, ktorá vedie na steny, pre sklenými štítmi a konzolovými balkónmi pod širokými okrajmi strechy. Existuje niekoľko možností na dekoráciu vonkajších stien v prvom poschodí: môžu to byť vertikálne vláknité cementové panely Kedral s niekoľkými desiatkami možných farieb, môže sa realizovať aj obklad z tehál, tiež so širokou škálou tvarov a farieb a môže to byť iba fasádna omietka, ktorú je možné prakticky zafarbiť na akúkoľvek farbu.
Jemnosť kovu a kameňa v stodole je zmäkčená drevenou povrchovou úpravou v oblasti balkóna, ktorej farba sa tiež môže meniť. Takto si môžete vytvoriť svoj vlastný jedinečný vzhľad tohto domu.
Vytvorili sme tento dom s láskou k tomu, čo robíme a k tým pre ktorých to robíme a budúcim majiteľom želáme iba jednu vec: nechajte atmosféru v rodine tak teplú a slnečnú ako tento dom!
Cena:
- štandart = 229.000,-eur s DPH
- angarská borovica = 269.000,-eur s DPH
- sibírsky céder = 329.000,-eur s DPH
V cene sú zahrnuté aj solárne okná ako novinka na Slovensku, kde 3,2m2 okna vyhreje 28m2 miestnosti.
Náklady spojené na vykurovanie tohto domu 30,-eur / mesačne
Sprostredkovanie financovania ako aj pozemku , taktiež v ponuke.
V projekte boli použité dve stavebné technológie: prvé poschodie je vyrobené z veľkoformátových keramických blokov Porotherm 38 Thermo a druhé - podľa typu technológie polo dreveného dreva (technológia dreveného rámu alebo kostra, ) ktorej základom sú silné lepené hranoly. Bloky prvého poschodia nevyžadujú izoláciu (počas výstavby v strednom pruhu) a steny druhého poschodia a strecha majú izoláciu 250 mm, čo robí tento projekt veľmi energeticky účinným.
Výsledkom bolo, že sa pre 4 člennú rodinu objavil moderný, útulný dom, kde je všetko premyslené do najmenších detailov:
veranda je zarámovaná v drevenom ráme, priestranná vstupná hala, veľká šatňa pri vchode, obývacia izba, otvorený priestor kuchyne a jedálne. - Hosťovská izba so špajzou a celá sklenená stena s posuvnými dverami, ktoré umožňujú spojiť priestor obývacej izby s terasou. Schodisko vedie do druhého poschodia, ktoré je osvetleným denným svetlom. Na druhom poschodí sa nachádza hlavná spálňa s vlastnou šatňou s veľkým oknom a kúpeľňa so sprchou a vaňou, osvetleným podkrovným oknom. Na druhom poschodí sú tiež dve veľké detské izby s premyslenými úložnými priestormi a samostatnou kúpeľňou, so sprchou a vaňou, do ktorej denné svetlo vstupuje cez dve strešné okná.
Charakteristickým rysom tohto domu je možnosť nainštalovať systém, prostredníctvom ktorého môžete z kúpeľne na druhom poschodí vyhodiť špinavé prádlo - okamžite pôjde do práčovne na prvom poschodí.
Projekt má veľké zasklenie. Okrem panoramatického zasklenia v obývacej izbe je v izbách na druhom poschodí zasklená celá stena. Zároveň sa premýšľalo nad bezpečnosťou: panoramatické okná na druhom poschodí sú vyrobené z triplexu a v obývacej izbe sa používa tvrdené sklo. Všetky okná s dvojitým zasklením sú šetriace energiu, čo vám umožní cítiť sa pohodlne v dome za každého počasia a zároveň si vychutnať výhľad na okolitú prírodu.
Ak je to potrebné, k domu je možné pridať ďalšiu otvorenú terasu a prístrešok s plochou využitou strechou, ku ktorému je možné zariadiť prístup inštaláciou ďalšej rímsy v obývacej izbe.
Architektonickým štýlom, v ktorom sa tento projekt uskutočnil, je štýl, ktorý získava na popularite, zmes minimalizmu a podkrovia, so sedlovou strechou, ktorá vedie na steny, pre sklenými štítmi a konzolovými balkónmi pod širokými okrajmi strechy. Existuje niekoľko možností na dekoráciu vonkajších stien v prvom poschodí: môžu to byť vertikálne vláknité cementové panely Kedral s niekoľkými desiatkami možných farieb, môže sa realizovať aj obklad z tehál, tiež so širokou škálou tvarov a farieb a môže to byť iba fasádna omietka, ktorú je možné prakticky zafarbiť na akúkoľvek farbu.
Jemnosť kovu a kameňa v stodole je zmäkčená drevenou povrchovou úpravou v oblasti balkóna, ktorej farba sa tiež môže meniť. Takto si môžete vytvoriť svoj vlastný jedinečný vzhľad tohto domu.
Vytvorili sme tento dom s láskou k tomu, čo robíme a k tým pre ktorých to robíme a budúcim majiteľom želáme iba jednu vec: nechajte atmosféru v rodine tak teplú a slnečnú ako tento dom!
Cena:
- štandart = 229.000,-eur s DPH
- angarská borovica = 269.000,-eur s DPH
- sibírsky céder = 329.000,-eur s DPH
V cene sú zahrnuté aj solárne okná ako novinka na Slovensku, kde 3,2m2 okna vyhreje 28m2 miestnosti.
Náklady spojené na vykurovanie tohto domu 30,-eur / mesačne
Sprostredkovanie financovania ako aj pozemku , taktiež v ponuke.
Lokalita
Trenčín, Trenčín, Trenčiansky kraj, Slovensko
